Reproduction à l’identique d’une porte d’entrée à Forest
Avant : une porte ancienne abîmée, mais pleine de caractère
Située dans une maison bruxelloise typique, cette porte d’entrée double battant en bois présentait un charme indéniable… mais les années avaient laissé leur trace. Bois usé, peinture écaillée, vitrage ancien, quincaillerie vétuste : la structure était fatiguée et ne répondait plus aux exigences actuelles en termes d’isolation et de sécurité.


Objectif du projet : conserver l’âme, moderniser la performance
Le défi était clair : reproduire la porte à l’identique, en respectant chaque détail ornemental – moulures, grilles en fer forgé, imposte vitrée – tout en intégrant des solutions modernes de confort et de sécurité.
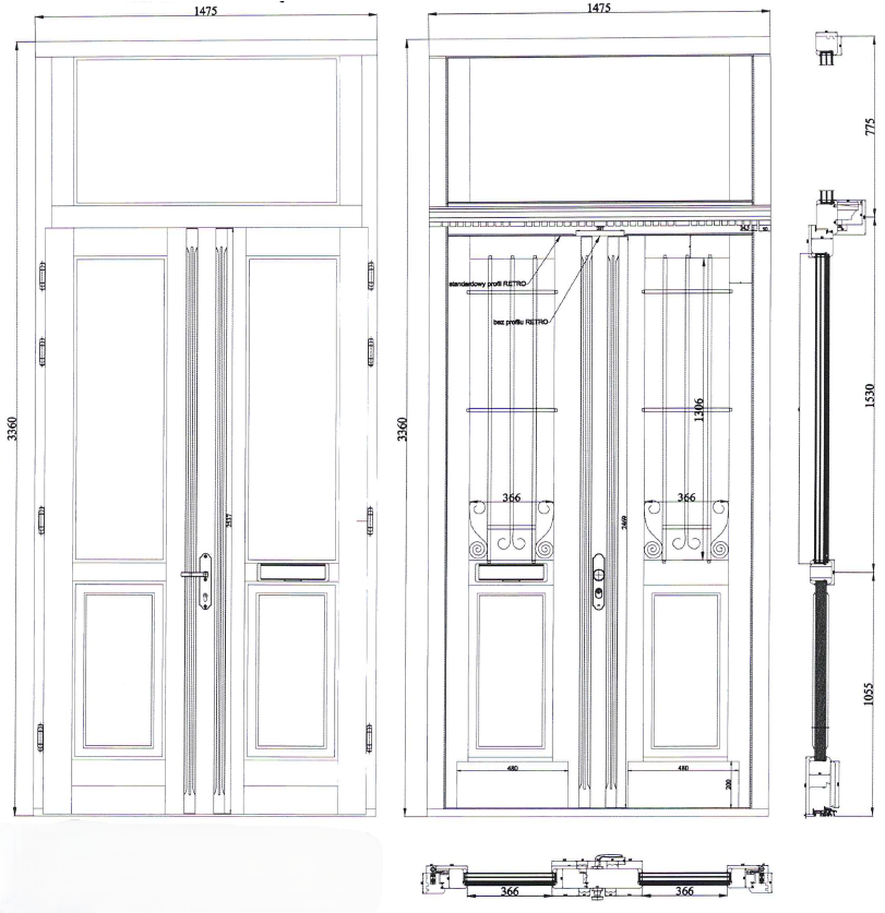
Notre bureau d’étude a établi un relevé précis et dessiné une version technique complète de la porte, validée avec le client et conforme à l’esthétique du bâtiment.
Après : une porte en bois neuve, fidèle à l’originale
La nouvelle porte a été réalisée sur mesure en atelier dans une essence de bois de haute qualité, avec :
- Double vitrage isolant performant
- Serrure multipoints
- Poignée sécurisée
- Finition lasurée de haute tenue
Chaque élément, du panneau bas aux motifs de grille, a été pensé pour s’intégrer parfaitement à la façade existante, tout en offrant une performance optimale sur le plan thermique et acoustique.

Résultat : une façade sublimée et protégée pour longtemps
Le remplacement a permis de conserver le cachet architectural de la maison, tout en répondant aux standards actuels de confort. Un travail de reproduction fidèle qui illustre parfaitement notre savoir-faire en menuiserie sur mesure patrimoniale.

